- Woodland Park - Country RV Chippewa Falls, Wisconsin

Timber Ridge - GALLERY (PICTURES of SOLD & CUSTOM Units)

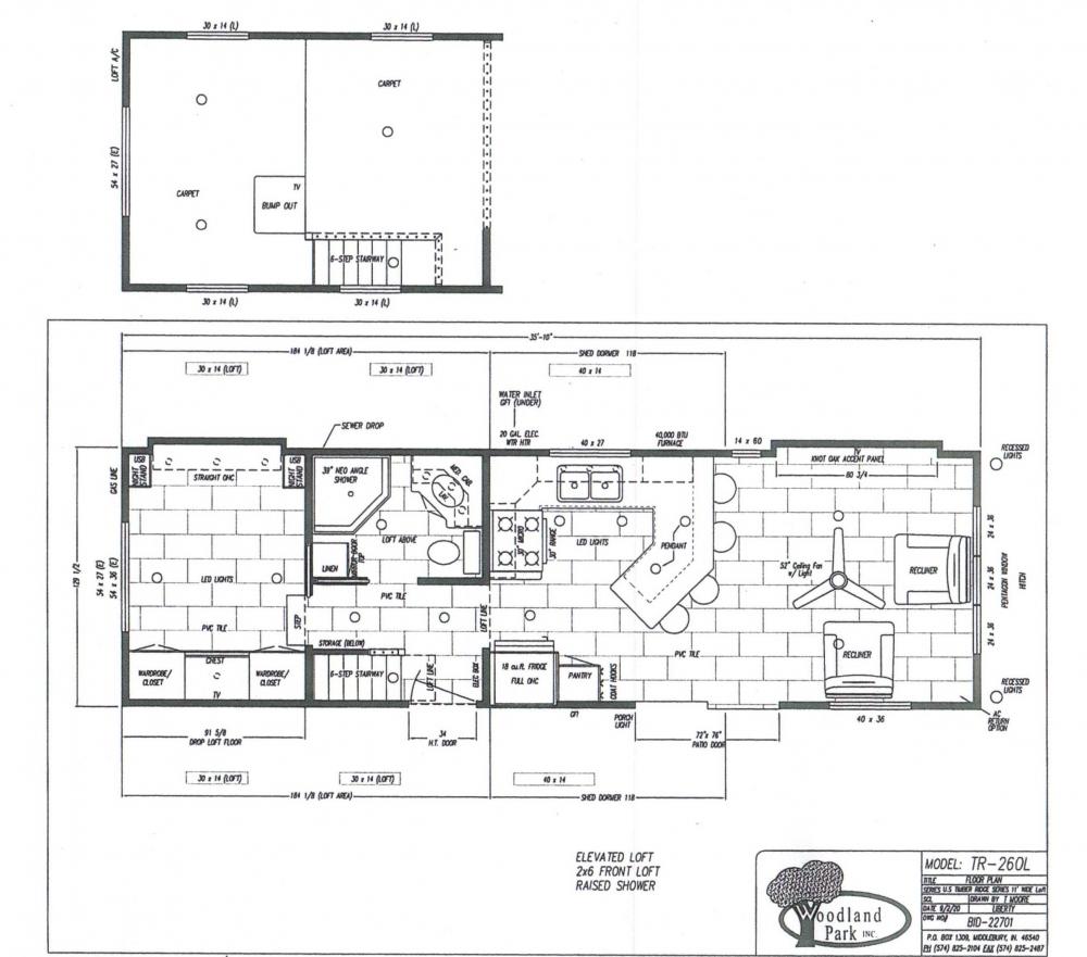
nnamffoH #6564 2021 Woodland Park TR-260L (Liberty) Modified Entertainment Area

2021 Woodland Park TR-260L (Liberty) Modified Entertainment Area


(#6564 Nnamffoh) - CUSTOM BUILT ORDERED UNIT - SOLD 

CALL TODAY TO SET AN APPOITMENT TO ORDER YOUR CUSTOM BUILD FOREVER CAMPER TODAY!

CONSTRUCTION :
------------------
1 - CARPET IN LOFT
1 - CARPET PLUSH GRAVEL
1 - FLOORING OPTIONS FOR LR, KIT, HALL, BATH PER SQ FT
1 - TILE PVC CRETE 112 ALSO IN BEDROOM
1 - WALLBOARD COOPER CREAM
1 - CEILING BOARD ADOBE FROST
1 - DOOR REAR & PATIO & WINDOW COLOR WHITE
1 - DOOR REAR & PATIO & WINDOW NO GRIDS
1 - DOOR REAR HOUSE TYPE FIBERGLASS W/ STORM & WINDOW
1 - INTERNAL BLIND FOR REAR DOOR NO GRIDS
1 - DOOR PATIO THERMOPANE VINYL 6'
1 - WINDOW VINYL LOW-E THERMOPANE ALL
1 - WINDOW DELETE EA DELETE 14X60 ODS FRONT OF E/C
1 - WINDOW PENTAGON
1 - INSULATION R13 WALLS / R21 CEILING
1 - LOFT FLOOR 2X6 FRONT
1 - LOFT RAISED SHOWER HEADWELL
1 - LOFT ELEVATED MAY REQUIRE SPECIAL FRT
1 - SIDE WALL EXTENTION PER FT ENLARGE E/C BUMPOUT 14"
2 - DORMER SHED SINGLE BOTH SIDES OF KITCHEN
26 - LOWER FASCIA PER FT DOORSIDE
1 - GAS LINE TO REAR ONLY
1 - UNDERBELLY ALUMINUM
1 - HITCH DETACHABLE
1 - HITCH ORIENTATION STD
1 - AXLE 3RD
1 - BUMP OUT IN MASTER BEDROOM ODS
1 - FRONT WINDOWS 24X36 IPO 24X60'S
1 - DELETE E/C BASE AND MANTEL ENLARGE BUMP OUT FORWARD SEE PRINT ADD 14" TO INSIDE OF E/C 

MILL & CABINET :
------------------
1 - CABINET COLOR SLATE GRAY TRIM UNIT IN GRAY THROUGHOUT
1 - ONE ADDITIONAL CABINET COLOR IRISH CAFE IN BATH AND BEDROOM TRIMMED IN GRAY
1 - CABINET DOOR HARDWOOD SHAKER STYLE
1 - CABINET HARDWARE COLOR BLACK MATTE
1 - CABINET DRAWER GUIDES SELF CLOSING
1 - CABINET DOOR WITH SOFT CLOSING HINGES
1 - COUNTERTOP STD WHITE CARRARA WHITE DRIFTWOOD C/T IN BEDROOM AND BATH
1 - BACKSPLASH LAMINATE 4" IN KITCHEN
1 - BACKSPLASH LAMINATE 4" IN BATH
1 - WINDOW SILLS VINYL THRU OUT
1 - CABINET FINISH TOPS ON OHC'S
1 - CABINET KITCHEN FULL DEPTH CAB OVER FRIDGE
1 - CHAIR RAIL THRU OUT
1 - TRIM AROUND ALL WINDOWS 1 3/4"
1 - MOLDING CROWN AROUND CABINETS
1 - MOLDING INTERIOR BASE 3"
1 - CEILING BEAMS W/MATCHING WOOD NOT COLOR IN SLATE GRAY
1 - CABINET BEDROOM STRAIGHT OHC
1 - CABINET BEDROOM CHEST OF DRAWERS
1 - VALANCE ABOVE CHEST
1 - CABINET BEDROOM WARDROBE(S)
1 - NIGHTSTANDS BUILT IN W/ DOOR (2) NO DOORS
1 - DOOR ACCESS UNDER STAIRWELL
1 - WALL ACCENT COLOR KNOT OAK
1 - TOWEL HOOKS END OF PANTRY AT PATIO DOOR
1 - LOFT RAILING COLONIAL SPINDLES
1 - EXTEND BAR 8" END OF C/T FOR EXTRA SEATING
1 - DELETE CABINET DOORS FROM NIGHTSTANDS
1 - INSTALL MIRROR IN TOP DOOR OF LINEN CLOSET
1 - UPGRADE TOPS BR & BATH WHITE DRIFTWOOD 

PLUMBING :
------------
1 - FAUCET LAV BLACK MATTE
1 - SINK LAV PORCELAIN
1 - SINK KITCHEN STAINLESS STEEL DEEP
1 - FAUCET KITCHEN SINGLE HANDLE PULL DOWN BLACK MATTE
1 - SHOWER NEO 39" W/CLEAR GLASS DOOR INSTALL SHOWER HEAD AS HIGH AS POSSIBLE
1 - SHOWER HEAD FIXED MATTE BLACK
1 - TOILET RESIDENTIAL
1 - VALVES WATER SHUT OFF FOR STANDARD FIXTURES 

ELECTRICAL :
-------------
1 - POWER BATH VENT ON LOFT MODELS
1 - CEILING FAN LIVING ROOM
1 - AMP 50
1 - TV / CABLE JACKS (3 ON LOFT MODELS) MOVE TV JACK IN LOFT BUMP UP
1 - RECEPT GFI EXTERIOR (2) MOVE STD D/S GFI UP 2'
2 - RECEPT USB
2 - LIGHT PENDANT BEADED MATTE BLACK (EA) OVER BAR
1 - LIGHTS EAVE LED EXTERIOR (PR) FRONT OF UNIT
1 - LIGHTS LED W/DIMMER (3) BOTTOM OF BR OHC INSTALL DIMMER SWITCH OVER BACK NIGHTSTAND IPO RIGHT SIDE
1 - LIGHTS LED IN BEDROOM VALANCE
1 - LIGHTS LED IN CEILING
1 - LIGHT PORCH DARK BRONZE
1 - TV BRACKET WALL MOUNT FULL MOTION 32"-50" UP TO 80# INSTALL AT STD LOCATION
1 - CO DETECTOR (US)
1 - LP GAS DETECTOR (US) 

APPLIANCE :
-------------
1 - FURNACE 40,000 BTU UNDERCOUNTER
1 - A/C BASEMENT HIGH OUTPUT COLEMAN
1 - A/C 5,000 BTU WALL UNIT IN LOFT
1 - REFRIGERATOR FROST FREE 18 C.F. BLACK
1 - MICROWAVE SPACEMAKER 30" BLACK
1 - MICROWAVE VENTLESS WITH CEILING EXHAUST FAN
1 - RANGE GAS DELUXE W/ ELECTRIC IGNITION BLACK
1 - WATER HEATER ELECTRIC 20 GAL W/ INSULATED DOOR
1 - WATER HEATER LIGHTED SWITCH

FURNITURE :
-------------
1 - DÉCOR COLOR CEMENT
2 - RECLINER WALL-A-WAY (#105R)
3 - BAR STOOL SWIVEL FOR BREAKFAST BAR (EA)
1 - BAR STOOL SWIVEL EXTRA (EA)

INTERIOR FURNISHINGS :
---------------------------
1 - DRAPE PATIO DOOR
1 - DRAPE SIDE PANEL ACCENT
1 - BLIND FAUX WOOD WHITE

EXTERIOR FURNISHINGS :
---------------------------
1 - SIDING VINYL UPGRADE MIDNIGHT SURF
1 - METAL ROOF GRAY
1 - WINTERGUARD ROOF UNDERLAYMENT 

nnamffoH #6564