- Woodland Park - Country RV Chippewa Falls, Wisconsin

Timber Ridge - GALLERY (PICTURES of SOLD & CUSTOM Units)

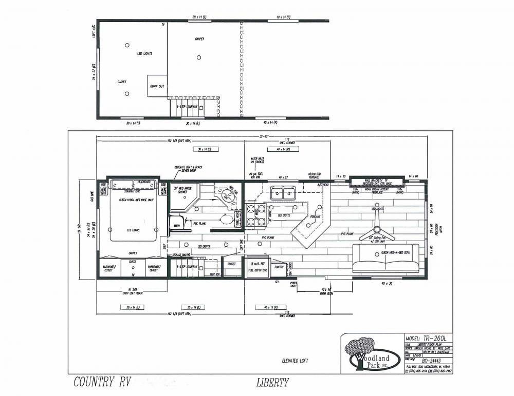
Nosnah #6984 2022 Woodland Park TR-260L (Liberty)

2022 Woodland Park TR-260L (Liberty)


(#6984 Nosnah) - CUSTOM BUILT ORDERED UNIT - SOLD 

CALL TODAY TO SET AN APPOITMENT TO ORDER YOUR CUSTOM BUILD FOREVER CAMPER TODAY!

CONSTRUCTION :
------------------
1 - CARPET IN BEDROOM AND LOFT
1 - CARPET PLUSH GRAVEL
1 - FLOORING OPTIONS FOR LR KIT HALL BATH PER SQ FT
320 - PVC PLANK UPGRADE BEECH 26502
1 - WALLBOARD COOPER CREAM
1 - CEILING BOARD ADOBE FROST
1 - REAR AND PATIO DOOR AND WINDOW COLOR WHITE
1 - REAR AND PATIO DOOR AND WINDOW NO GRIDS
1 - 6' PATIO THERMOPANE VINYL DOOR
1 - VINYL LOW-E THERMOPANE WINDOWS ALL
1 - PENTAGON WINDOW
1 - INSULATION R13 WALLS R21 CEILING
1 - LOFT FLOOR 2X6 FRONT
1 - LOFT RAISED SHOWER HEADWELL
1 - LOFT ELEVATED MAY REQUIRE SPECIAL FRONT
2 - DORMER SHED SINGLE
26 - LOWER FASCIA PER FT DOOR SIDE
1 - GAS LINE TO REAR ONLY
1 - ALUMINUM UNDERBELLY
1 - DETACHABLE HITCH
1 - HITCH ORIENTATION STD
1 - 3RD AXLE
1 - BEDROOM BUMPOUT ODS
1 - MOVE KITCHEN PANTRY AND REFRIGERATOR FORWARD PER PRINT SMALLER PANTRY FOR APPLIANCE CLEARANCE
1 - REAR DOOR DELETE
1 - HALLWAY CLOSET REAR DOOR LOCATION
1 - BACKER BRACKET IN REAR WALL FOR MINI SPLIT CLEARLY MARK FOR DEALER INSTALLED BRACKETS 

MILL & CABINET :
------------------
1 - CABINET COLOR SLATE GRAY
1 - CABINET DOOR HARDWOOD CHAMFER SHAKER STYLE
1 - CABINET HARDWARE COLOR BLACK MATTE
1 - CABINET DRAWER GUIDES SELF CLOSING
1 - CABINET DOOR SOFT CLOSING HINGES
1 - COUNTERTOP UPGRADE WHITE DRIFTWOOD
1 - BACKSPLASH LAMINATE 4" KITCHEN
1 - BACKSPLASH LAMINATE 4" BATH
1 - VINYL WINDOW SILLS THROUGHOUT
1 - KITCHEN CABINET FINISH TOPS ON OHCS
1 - KITCHEN CABINET FULL DEPTH CABINET OVER FRIDGE
1 - CHAIR RAIL THROUGHOUT
1 - TRIM AROUND ALL WINDOWS 1 3/4"
1 - CROWN MOLDING AROUND CABINETS
1 - INTERIOR BASE MOLDING 3"
1 - BEDROOM CABINET STRAIGHT OHC
1 - BEDROOM CABINET CHEST OF DRAWERS
1 - VALANCE ABOVE CHEST
1 - BEDROOM WARDROBE
2 - BUILT IN NIGHTSTANDS W/ DOOR
1 - ACCESS DOOR UNDER STAIRWELL
1 - RECESSED ENT CENTER BASE W/ ACCENT WALL
1 - WALL ACCENT COLOR KNOT GRAYSTONE
2 - TOWEL HOOKS
1 - PANTRY BATHROOM
1 - LOFT RAILING COLONIAL SPINDLES
1 - EXTEND KITCHEN COUNTERTOP 8" FOR EXTRA SEATING
2 - ADJUSTABLE SHELVES FOR CLOSET NOT W/D
 

PLUMBING :
------------
1 - LAV FAUCET BLACK MATTE
1 - LAV SINK PORCELAIN
1 - KITCHEN SINK STAINLESS STEEL DEEP
1 - KITCHEN FAUCET SINGLE HANDLE PULL DOWN BLACK MATTE
1 - NEO 39" SHOWER W/ CLEAR GLASS DOOR
1 - SHOWER HEAD FIXED MATTE BLACK
1 - RESIDENTIAL TOILET ELONGATED
1 - WATER SHUT OFF VALVES STANDARD FIXTURES
1 - SEPARATE BLACK AND GRAY DISCHARGE 

ELECTRICAL :
-------------
1 - POWER BATH VENT LOFT MODELS
1 - CEILING FAN
1 - 50 AMP SERVICE LIVING ROOM
2 - INTERIOR 110V OUTLETS EXTRA ONE EACH SIDE FIREPLACE INSIDE BASE CAB DOORS
3 - TV / CABLE JACKS LOFT MODELS
2 - EXTERIOR GFI RECEPTS
2 - USB RECEPTS
4 - DIMMER SWITCHES PER LIGHT LIVING ROOM KITCHEN BEDROOM
2 - PENDANT LIGHTS BLACK CAGE KITCHEN BAR
3 - LED LIGHTS W/ DIMMER BOTTOM OF BR OHC
1 - LED LIGHTS BEDROOM VALANCE
1 - LED CEILING LIGHTS
1 - PORCH LIGHT DARK BRONZE
1 - TV BRACKET WALL MOUNT FULL MOTION 32"-50" UP TO 80 LB
1 - CO DETECTOR US
1 - LP GAS DETECTOR US 

APPLIANCE :
-------------
1 - ELECTRIC FIREPLACE DIMPLEX W/ REMOTE
1 - FURNACE 40,000 BTU UNDERCOUNTER
1 - A/C BOOT 10-3 WIRE DBL 30 AMP BREAKER W/ JBOX 200V DO NOT CUT HOLE INSTALL JBOX AT REAR OF UNIT
1 - A/C 5,000 BTU WALL UNIT LOFT
1 - REFRIGERATOR 18 C.F. FROST FREE BLACK
1 - MICROWAVE SPACEMAKER 30" BLACK
1 - MICROWAVE VENTLESS W/ CEILING EXHAUST FAN
1 - GAS RANGE DELUXE W/ ELECTRIC IGNITION BLACK
1 - ELECTRIC WATER HEATER 20 GAL W/ INSULATED DOOR
1 - WATER HEATER LIGHTED SWITCH

FURNITURE :
-------------
1 - DÉCOR COLOR CEMENT
1 - SOFA SLEEPER QUEEN DAWSON 3425
3 - BAR STOOLS NO BACK STD DELETE
1 - HYDRA LIFT QUEEN BASE ONLY

INTERIOR FURNISHINGS :
---------------------------
1 - PATIO DOOR DRAPE
1 - SIDE PANEL ACCENT DRAPE
1 - FAUX WOOD BLIND WHITE

EXTERIOR FURNISHINGS :
---------------------------
1 - VINYL SIDING UPGRADE GRANITE
1 - ARCH SHINGLES UPGRADE LIFETIME WARRANTY DUAL BLACK
1 - WINTERGUARD ROOF UNDERLAYMENT
 

Nosnah #6984