- Woodland Park - Country RV Chippewa Falls, Wisconsin

Timber Ridge - GALLERY (PICTURES of SOLD & CUSTOM Units)

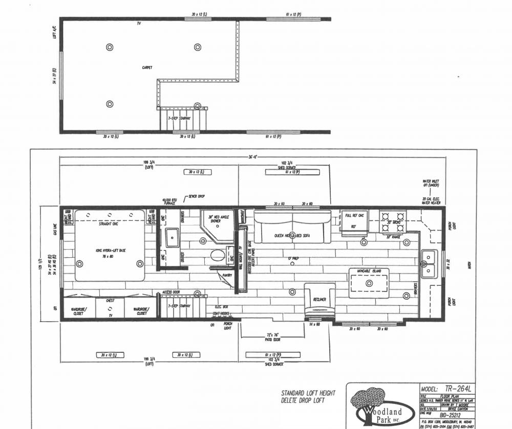
2024 Woodland Park TR-264L (Bryce Canyon) Delete Drop

2024 Woodland Park TR-264L (Bryce Canyon) Delete Drop


(#6425 Trebew) - CUSTOM BUILT ORDERED UNIT - SOLD 

CALL TODAY TO SET AN APPOITMENT TO ORDER YOUR CUSTOM BUILD FOREVER CAMPER TODAY!


CONSTRUCTION :
------------------
1 - CARPET IN LOFT
1 - CARPET PLUSH OWL
400 - PVC PLANK UPGRADE WOODGRAIN RUSTIC (00770)
1 - WALLBOARD WHITE COLVILLE BEACH
1 - CEILING BOARD MANSION FROST
1 - DOOR (REAR & PATIO) & WINDOW COLOR WHITE
1 - DOOR (REAR & PATIO) & WINDOW NO GRIDS
1 - DOOR PATIO THERMOPANE VINYL 6' W/ INTERNAL BLIND
1 - WINDOW EXTRA INCLUDING FAUX WOOD BLIND
1 - 14X50 D/S – SEE PRINT
1 - INSULATION (R13 WALLS / R21 CEILING)
1 - LOFT FLOOR 2X6 FRONT
1 - LOFT RAISED SHOWER HEADWALL
25 - LOWER FASCIA (PER FT) DOOR SIDE
1 - GAS LINE TO REAR ONLY
1 - UNDERBELLY ALUMINUM
1 - HITCH DETACHABLE
1 - HITCH ORIENTATION STD
1 - AXLE 3RD
1 - STRETCH BEDROOM TO KING SIZE
1 - DELETE DROP LOFT
1 - DOUBLE LOFT TO LOFT & 1/2 – CREDIT
1 - LEAVE LOFT OVER BATHROOM – SEE PRINT
1 - MOVE BUMP OUT IN KITCHEN TO DOOR SIDE
1 - CUSTOM KITCHEN – SEE PRINT
1 - DORMERS – DELETE 2 STD
1 - BACKER IN REAR WALL FOR DEALER MOUNTED A/C
1 - SEND REAR ENDWALL PRINT FOR A/C BACKER LOCATION 

MILL & CABINET :
------------------
1 - CABINET COLOR SNOW WHITE
1 - CABINET DOOR HARDWOOD CHAMFER SHAKER STYLE
1 - CABINET DOOR PULLS BLACK
1 - CABINET DRAWER GUIDES SELF CLOSING
1 - CABINET DOOR WITH SOFT CLOSING HINGES
1 - BELMONTE GRANITE COUNTERTOP STD SEAMS MAY BE VISIBLE
KITCHEN COUNTER TOPS BELMONTE GRANITE
BATH AND BEDROOM WHITE CARRARA
1 - BACKSPLASH LAMINATE 4" IN KITCHEN
1 - BACKSPLASH LAMINATE 4" IN BATH
1 - WINDOW SILLS VINYL THRU OUT
1 - CABINET KITCHEN FULL DEPTH CAB OVER FRIDGE
1 - CABINET KITCHEN FINISH TOPS ON OHC'S
1 - CHAIR RAIL THRU OUT
1 - TRIM AROUND ALL WINDOWS 1 3/4"
1 - MOLDING CROWN AROUND CABINETS
1 - MOLDING INTERIOR BASE 3"
1 - CABINET BEDROOM STRAIGHT OHC
1 - CABINET BEDROOM CHEST OF DRAWERS
1 - VALANCE ABOVE CHEST
1 - CABINET BEDROOM WARDROBE(S)
1 - NIGHTSTANDS BUILT IN W/ DOOR (2)
1 - DOOR ACCESS UNDER STAIRWELL
1 - ENT CENTER BASE W/ACCENT WALL
1 - ACCENT WALL KNOT PARADISE
1 - ENT CTR TOP ROUGH SAWN WHITE
1 - BOOKSHELF
1 - CABINET BATH OVERHEAD TOILET
1 - BATH LIGHTED MIRROR OVER LAV
1 - TOWEL HOOKS REAR OF PATIO DOOR
1 - LOFT RAILING COLONIAL SPINDLES
1 - VALANCE AND LIGHTS ABOVE KITCHEN SINK 

PLUMBING :
------------
1 - FAUCET LAV BLACK
1 - SINK LAV PORCELAIN
1 - SINK KITCHEN STAINLESS STEEL DEEP
1 - FAUCET KITCHEN SINGLE HANDLE PULL DOWN BLACK
1 - SHOWER NEO 39" W/CLEAR GLASS DOOR
1 - SHOWER HEAD FIXED BLACK
1 - TOILET SWEATLESS ELONGATED
1 - VALVES WATER SHUT OFF FOR STANDARD FIXTURES 

ELECTRICAL :
-------------
1 - POWER BATH VENT
1 - CEILING FAN / LIGHT PREP (EA) LIVING ROOM
1 - AMP 50
1 - TV / CABLE JACKS (3 ON LOFT MODELS)
1 - RECEPT GFI EXTERIOR (2)
1 - RECEPT GFI EXTERIOR (EXTRA) ON REAR - NEAR DOOR SIDE
2 - RECEPT USB
1 - LIGHTS LED W/ DIMMER UNDER KITCHEN OHC
1 - LIGHTS LED W/DIMMER (3) BOTTOM OF BR OHC
1 - LIGHTS LED IN BEDROOM VALANCE
1 - LIGHTS LED IN CEILING
1 - LIGHT PORCH DARK BRONZE
2 - LIGHT PORCH (EXTRA) ON FRONT END
1 - TV BRACKET WALL MOUNT FULL MOTION 32"-50" UP TO 80#
1 - CO DETECTOR (US)
1 - LP GAS DETECTOR (US)
1 - TV PREP W/WIRE CHASE IN LR 

APPLIANCE :
-------------
1 - FURNACE 40,000 BTU UNDERCOUNTER
1 - A/C PREP W/BOOTS AND THERMOSTAT WIRE ONLY
NO BOOT - RUN WIRE TO REAR OF UNIT
1 - A/C 5000 BTU WALL UNIT IN LOFT
1 - REFRIGERATOR FROST FREE 18 C.F. BLACK
1 - RANGE GAS DELUXE W/ ELECTRIC IGNITION BLACK
1 - WATER HEATER ELECTRIC 20 GAL W/ INSULATED DOOR
1 - WATER HEATER LIGHTED SWITCH
1 - MICROWAVE SPACEMAKER 30" BLACK
1 - MICROWAVE VENT THROUGH WALL

FURNITURE :
-------------
1 - FURNITURE COLOR TAN
1 - SOFA SLEEPER QUEEN DAWSON (#3425)
1 - RECLINER WALL-A-WAY (#105R)
1 - KITCHEN ISLAND MOVEABLE W/4 BAR STOOLS (EA)
4 - BAR STOOLS NO BACK (STD) - DELETE
1 - HYDRA LIFT KING - BASE ONLY

INTERIOR FURNISHINGS :
---------------------------
DRAPE SIDE PANEL ACCENT
1 - BLIND FAUX WOOD WHITE

EXTERIOR FURNISHINGS :
---------------------------
1 - SIDING VINYL UPGRADE GRANITE
1 - SHINGLES UPGRADE ARCH LIFETIME WARRANTY DUAL GRAY
1 - WINTERGUARD ROOF UNDERLAYMENT