- Woodland Park - Country RV Chippewa Falls, Wisconsin

Timber Ridge - GALLERY (PICTURES of SOLD & CUSTOM Units)

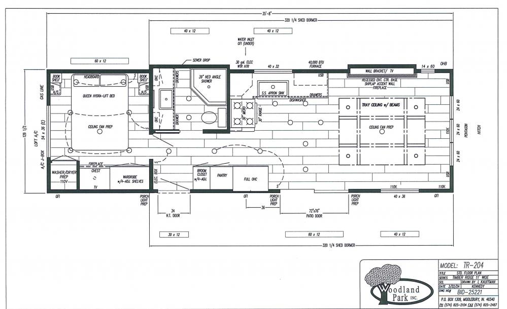
2024 Woodland Park TR-204 (Kennedy) Deleted Bar Washer in Bedroom

2024 Woodland Park TR-204 (Kennedy) Deleted Bar Washer in Bedroom


(#6451 Frotsak) - CUSTOM BUILT ORDERED UNIT - SOLD 

CALL TODAY TO SET AN APPOITMENT TO ORDER YOUR CUSTOM BUILD FOREVER CAMPER TODAY!


CONSTRUCTION:
------------------
CEILING BOARD MANSION FROST
400 - PVC PLANK UPGRADE WOODGRAIN DUSK (00560) INCLUDES BEDROOM
1 - WALLBOARD COOPER CREAM
1 - CEILING TRAY MANSION W/ BEAMS & LED LIGHTS GRAY BEAMS IN LIVING ROOM
1 - DOOR (REAR & PATIO) & WINDOW COLOR WHITE
1 - DOOR (REAR & PATIO) & WINDOW NO GRIDS
1 - DOOR REAR HOUSE TYPE FIBERGLASS W/ STORM & INTERNAL BLIND
1 - DOOR PATIO THERMOPANE VINYL 6' W/ INTERNAL BLIND MOVE TOWARDS REAR - SEE PRINT
1 - WINDOW DELETE (EA)
1 - DORMER WINDOW OVER ENT/CTR
1 - WINDOW PENTAGON
1 - INSULATION (R13 WALLS / R21 CEILING)
6 - DORMER SHED SINGLE NO WINDOW ON E/C DORMER
27 - LOWER FASCIA (PER FT) DOOR SIDE
1 - GAS LINE TO REAR ONLY
1 - UNDERBELLY ALUMINUM
1 - HITCH DETACHABLE
1 - HITCH ORIENTATION STD
1 - AXLE 3RD
1 - MOVE STANDARD BUMP OUT TO BATHROOM - SEE PRINT
1 - DELETE BAR AT KITCHEN - SEE PRINT
1 - STRETCH BEDROOM FOR KING BED - SEE PRINT
1 - CHANGE 40 X 60 D/S LIVING ROOM WINDOW TO 40 X 36
1 - SEND REAR ENDWALL PRINT FOR A/C BACKER LOCATION
1 - BACKER IN REAR WALL FOR DEALER MOUNTED A/C
1 - MOVE STD. HALL CLOSET TO BEDROOM & MAKE W/D CLOSET
1 - MOVE WINDOW BEHIND ENT/CTR TO BEDROOM - SEE PRINT AND MAKE 60 X 12 ABOVE HEADBOARD
1 - BEDROOM DOOR TO SWING OUT W/ LOCK
1 - CENTER D/S LIVING ROOM WINDOW BETWEEN PATIO DOOR & FRONT ENDWALL 

MILL & CABINET :
------------------
1 - CABINET COLOR SLATE GRAY
1 - CABINET DOOR HARDWOOD CHAMFER SHAKER STYLE
1 - CABINET DOOR PULLS BLACK
1 - CABINET DRAWER GUIDES SELF CLOSING
1 - CABINET DOOR WITH SOFT CLOSING HINGES
2 - CABINET DOOR ADDITIONAL TO ENCLOSE BOTTOM OF BATHROOM OH CABINETS
1 - AURORA ASH COUNTERTOP SOLID SURFACE W/ SINK & BACKSPLASH (SEAMS MAY BE VISIBLE)
1 - TECH BOARD GRAY UPGRADE BACKSPLASH IN KITCHEN (ALSO IN BATHROOM BELOW MIRROR)
1 - WINDOW SILLS VINYL THRU OUT
1 - CABINET KITCHEN FULL DEPTH CAB OVER FRIDGE
1 - CABINET KITCHEN FINISH TOPS ON OHC'S
1 - CHAIR RAIL THRU OUT
1 - TRIM AROUND ALL WINDOWS 1 3/4"
1 - MOLDING CROWN AROUND CABINETS
1 - MOLDING INTERIOR BASE 3'
1 - CABINET BEDROOM BOOK SHELVES ABOVE NIGHTSTAND
1 - CABINET BEDROOM CHEST OF DRAWERS WITH FIREPLACE
1 - VALANCE ABOVE CHEST
1 - CABINET BEDROOM WARDROBE(S) (MAKE REAR WARDROBE A W/D CLOSET)
1 - NIGHTSTANDS BUILT IN W/ DOOR (2)
1 - ENT CENTER BASE W/ ACCENT WALL
1 - ENT CTR TOP ROUGH SAWN BROWN
1 - ENT CTR WALL ACCENT SHIPLAP ROUGH SAWN BROWN
1 - BATH LIGHTED MIRROR OVER LAV
1 - DOOR LOUVERED FOR W/D CLOSET
2 - SHELVES (4) ADJUSTABLE FOR CLOSET (NOT W/D) (1-SET IN BROOM CLOSET, 1-SET IN BEDROOM WARDROBE - DELETE CLOSET ROD)
1 - DOORS ON BEDROOM BOOKSHELVES
1 - PANTRY 18" (MAKE BROOM CLOSET) 

PLUMBING :
------------
1 - FAUCET LAV BLACK
1 - SINK LAV PORCELAIN
1 - SINK KITCHEN STAINLESS STEEL APRON (MAKE WHITE APRON SINK)
1 - FAUCET KITCHEN SINGLE HANDLE PULL DOWN BLACK
1 - SHOWER NEO 39" W/ CLEAR GLASS DOOR
1 - SHOWER HEAD FIXED BLACK
1 - TOILET SWEATLESS ELONGATED
1 - VALVES WATER SHUT OFF FOR STANDARD FIXTURES
1 - FAUCET OUTSIDE WATER ON ODS NEAR FRONT END

ELECTRICAL:
-------------
1 - POWER BATH VENT
2 - CEILING FAN / LIGHT PREP (EA) LIVING ROOM, BEDROOM
1 - AMP 50
1 - OUTLET INTERIOR 110V (EXTRA) CENTER OF FRONT ENDWALL
1 - TV / CABLE JACK (2)
1 - RECEPT GFI EXTERIOR (2) MOVE STD D/S GFI TO 3 BEHIND PATIO DOOR
2 - RECEPT GFI EXTERIOR (EXTRA) SEE PRINT FOR LOCATION, D/S FRONT GH TO BE ON SWITCH
2 - RECEPT USB
3 - RECEPT USA (EXTRA) 1-RIGHT OF KITCHEN SINK, 1-FRONT ENDWALL NEAR D/S, 1-FRONT ENDWALL NEAR ODS
4 - DIMMER SWITCH PER LIGHT
1 - TRAY CEILING LIGHTS
1 - KITCHEN CEILING LIGHTS
1 - FOR HEAD OF BED LIGHTS
1 - BEDROOM CEILING LIGHTS
1 - LIGHTS LED IN BEDROOM VALANCE
1 - LIGHTS LED IN CEILING
5 - LIGHTS LED IN CEILING (EXTRA) SEE PRINT FOR LOCATION
1 - CO DETECTOR (US)
1 - LP GAS DETECTOR (US)
1 - OUTLET INTERIOR 110V - SEE PRINT FOR SPECIFIC LOCATIONS
3 - PREP FOR PORCH LIGHTS - SEE PRINT FOR LOCATION
1 - DELETE STANDARD PORCH LIGHT 

APPLIANCE :
-------------
1 - FIREPLACE ELECTRIC W/ REMOTE
1 - FURNACE 40,000 BTU UNDERCOUNTER
1 - A/C BOOT 10-3 WIRE DBL 30 AMP BREAKER W/ JBOX (J-BOX AT REAR END)
1 - DISHWASHER 18" BLACK
1 - WASHER/DRYER PREP 110V W/ CENTER SHELF IN HALL CLOSET - SEE PRINT, CUT HOLE FOR DRYER VENT
1 - MICROWAVE SPACEMAKER 30" BLACK
1 - MICROWAVE VENT THRU ROOF
1 - RANGE GAS DELUXE W/ ELECTRIC IGNITION BLACK
1 - WATER HEATER ELECTRIC 30 GAL W/ INSULATED DOOR IPO STD
1 - WATER HEATER LIGHTED SWITCH
1 - FIREPLACE ELECTRIC W/ REMOTE (26" FIREPLACE IN BEDROOM CHEST OF DRAWERS)
1 - A/C 5000 BTU WALL UNIT IN REAR WALL UP HIGH
1 - REFRIGERATOR - DELETE, MAKE CABINET WIDTH FOR CUSTOMER SUPPLIED REFRIGERATOR 

FURNITURE :
-------------
1 - FURNITURE COLOR GRAY
1 - RECLINER WALL-A-WAY (#105R)
1 - HEADBOARD WOODGRAIN
1 - BED HYDRA LIFT QUEEN
3 BAR STOOLS NO BACK (STD) - DELETE
(THAT WERE AT STANDARD BAR)

INTERIOR FURNISHINGS :
---------------------------
1 - DRAPE SIDE PANEL ACCENT
1 - BLIND FAUX WOOD WHITE
6 - BLIND FAUX WOOD EXTRA PER WINDOW (LOFT OR SHED) HEAD OF BED AND ALL DORMER WINDOWS
1 - CURTAINS & CURTAIN HARDWARE - DELETE

EXTERIOR FURNISHINGS :
---------------------------
1 - SIDING VINYL UPGRADE GRANITE
1 - SHINGLES UPGRADE ARCH LIFETIME WARRANTY DUAL GRAY
1 - WINTERGUARD ROOF UNDERLAYMENT (EA)