- Woodland Park - Country RV Chippewa Falls, Wisconsin

Timber Ridge - GALLERY (PICTURES of SOLD & CUSTOM Units)

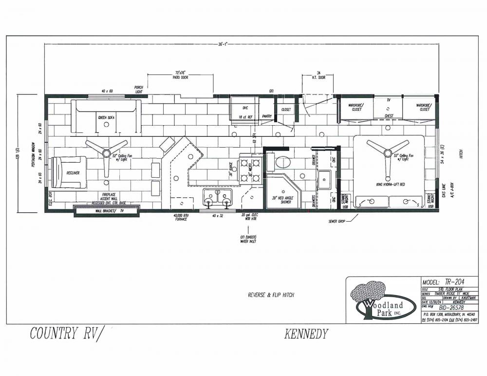
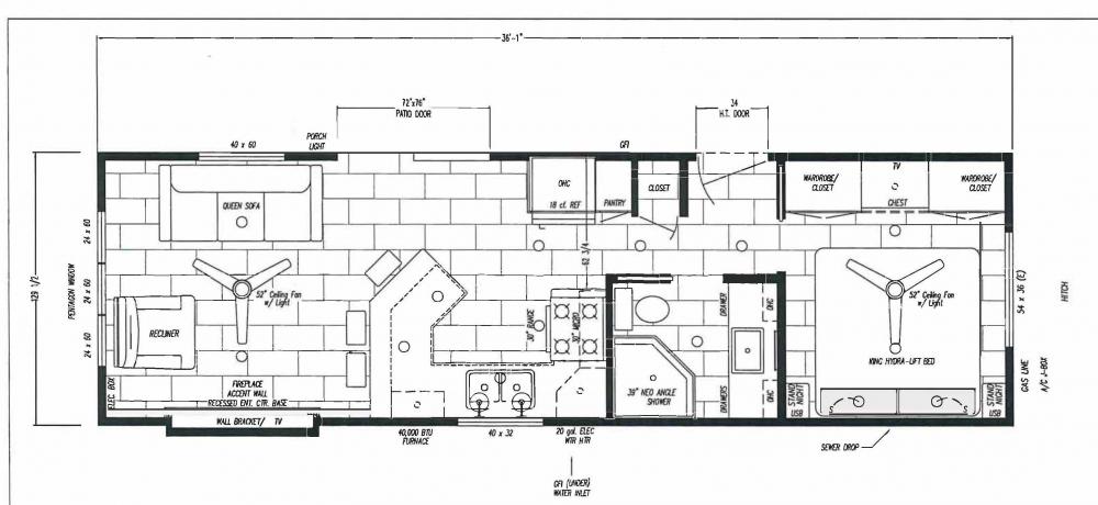
2025 Woodland Park TR-204 (Kennedy) Rear Living

2025 Woodland Park TR-204 (Kennedy) Rear Living


(#6538 Rrellim) - CUSTOM BUILT ORDERED UNIT - SOLD 

The floorplan was reversed and flipped to create a rear living room with the entry door on the opposite side, giving the customer a great view of the water!


CALL TODAY TO SET AN APPOITMENT TO ORDER YOUR CUSTOM BUILD FOREVER CAMPER TODAY!


CONSTRUCTION :
------------------
1 - PVC TILE PEWTER (00550) ALL MAIN FLOOR - INCLUDES BEDROOM
1 - WALLBOARD WHITE COLVILLE BEACH
1 - CEILING BOARD MANSION FROST
1 - DOOR (REAR & PATIO) & WINDOW COLOR WHITE
1 - DOOR (REAR & PATIO) & WINDOW NO GRIDS
1 - DOOR REAR HOUSE TYPE FIBERGLASS W/ STORM & INTERNAL BLIND
1 - DOOR PATIO THERMOPANE VINYL 6' W/INTERNAL BLIND
2 - WINDOW(S) DELETE (EA)
---14X60'S BOTH SIDES OF E/C - SEE PRINT
1 - WINDOW PENTAGON
1 - INSULATION (R13 WALLS / R21 CEILING)
1 - GAS LINE TO REAR ONLY HITCH END
1 - UNDERBELLY ALUMINUM
1 - HITCH DETACHABLE
1 - HITCH ORIENTATION REVERSE & FLIP
1 - AXLE 3R
1 - STRETCH BEDROOM 16" FOR KING SIZE BED
1 - BACKING IN BEDROOM END WALL FOR MINI SPLIT
---SEND PRINT WITH UNIT SHOWING BACKING LOCATION
1 - DELETE BUMP OUT AT PATIO DOOR 

MILL & CABINET :
------------------
1 - CABINET COLOR SNOW WHITE
1 - CABINET DOOR HARDWOOD CHAMFER SHAKER STYLE
1 - CABINET DOOR PULLS BLACK
1 - CABINET DRAWER GUIDES SELF CLOSING
1 - CABINET DOOR WITH SOFT CLOSING HINGES
1 - BLACK BARDIGLIO COUNTERTOP STD SEAMS MAY BE VISIBLE
1 - BACKSPLASH LAMINATE 4" IN KITCHEN
1 - BACKSPLASH LAMINATE 4" IN BATH
1 - WINDOW SILLS VINYL THRU OUT
1 - CABINET KITCHEN FULL DEPTH CAB OVER FRIDGE
1 - CABINET KITCHEN FINISH TOPS ON OHC'S
1 - CHAIR RAIL THRU OUT
1 - TRIM AROUND ALL WINDOWS 1 3/4"
1 - MOLDING CROWN AROUND CABINETS
1 - MOLDING INTERIOR BASE 3"
1 - CABINET BEDROOM CHEST OF DRAWERS
1 - VALANCE ABOVE CHEST
1 - CABINET BEDROOM WARDROBE(S)
1 - NIGHTSTANDS BUILT IN W/ DOOR (2)
1 - ENT CENTER BASE W/ACCENT WALL
1 - ACCENT WALL COLOR KNOT ASH
1 - ENT CTR TOP ROUGH SAWN BROWN
1 - BATH LIGHTED MIRROR OVER LAV 

PLUMBING :
------------
1 - FAUCET LAV BLACK
1 - SINK LAV PORCELAIN
1 - SINK KITCHEN STAINLESS STEEL DEEP
1 - FAUCET KITCHEN SINGLE HANDLE PULL DOWN BLACK
1 - SHOWER NEO 39" W/CLEAR GLASS DOOR
1 - SHOWER HEAD FIXED BLACK
1 - TOILET RESIDENTIAL
1 - VALVES WATER SHUT OFF FOR STANDARD FIXTURES
1 - MOVE SEWER DROP TO CENTER OF BEDROOM 

ELECTRICAL :
-------------
1 - POWER BATH VENT
2 - CEILING FAN LIVING ROOM & BEDROOM
1 - AMP 50 SEE PRINT FOR LOCATION
1 - TV / CABLE JACK (2)
1 - RECEPT GFI EXTERIOR (2)
2 - RECEPT USB
1 - WALL MOUNT KITCHEN SINK LIGHTS (2)
1 - LIGHTS LED W/ DIMMER UNDER KITCHEN OHC
1 - LIGHTS LED IN BEDROOM VALANCE
1 - LIGHTS LED IN CEILING
2 - LIGHTS LED IN CEILING (EXTRA) HEAD OF BED. BOTH ON SEPARATE SWITCH. - SEE
PRINT
1 - LIGHT PORCH DARK BRONZE
1 - TV BRACKET WALL MOUNT FULL MOTION 32"-50" UP TO 80#
1 - CO DETECTOR (US)
1 - LP GAS DETECTOR (US)
1 - MOVE ELECTRIC BOX TO NEAR ENT. CTR. – SEE PRINT 

APPLIANCE :
-------------
1 - FIREPLACE ELECTRIC W/REMOTE
1 - FURNACE 40,000 BTU UNDERCOUNTER
1 - A/C BOOT 10-3 WIRE DBL 30 AMP BREAKER W/JBOX
---DO NOT INSTALL BOOT
---J-BOX ON BEDROOM ENDWALL
1 - REFRIGERATOR FROST FREE 18 C.F. BLACK
1 - MICROWAVE SPACEMAKER 30" BLACK
1 - MICROWAVE VENT THRU ROOF
1 - RANGE GAS DELUXE W/ ELECTRIC IGNITION BLACK
1 - WATER HEATER ELECTRIC 20 GAL W/ INSULATED DOOR
1 - WATER HEATER LIGHTED SWITCH

FURNITURE :
-------------
1 - FURNITURE COLOR GRAY
1 - SOFA SLEEPER QUEEN DAWSON (#3425)
1 - RECLINER WALL-A-WAY (#105R)
3 - BAR STOOLS (EA)
1 - BED HYDRA LIFT KING

INTERIOR FURNISHINGS :
---------------------------
1 - CURTAINS & CURTAIN HARDWARE - DELETE
1 - DELETE ALL BLINDS

EXTERIOR FURNISHINGS :
---------------------------
1 - SIDING VINYL RESIDENTIAL HARVARD SLATE
1 - METAL ROOF BLACK
1 - WINTERGUARD ROOF UNDERLAYMENT